Ocio y espectáculo
Coliseu, Batalha, Rivoli
Un hotel con carácter. Social por naturaleza. Pensado para quedarse.
Praça da Liberdade, 126 · Oporto · Est. 1936
El Café Imperial nació en 1936 en el corazón del eje Aliados — el mismo eje donde el Art Déco portuense encontró su expresión más potente: el Coliseu, el Batalha, el Rivoli.
A diferencia de sus contemporáneos, el Imperial no era espectáculo ni prensa. Era vida social cotidiana, hecha arquitectura. Un salón de doble altura, arañas de cristal, mármol, vitrales y un águila de bronce sobre la entrada.
"Dignos del Waldorf Astoria, de Westminster Cathedral o del Mosteiro da Batalha." — Helder Pacheco, sobre los vitrales de Ricardo Leone
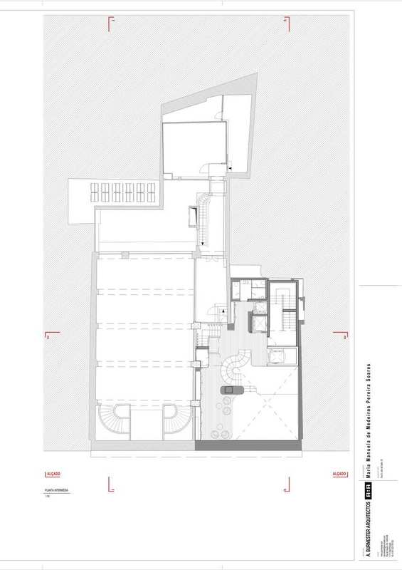
Las capas del tiempo, visibles. 2026.
A. Burmester Arquitectos · Escala 1:100 · Propuesta
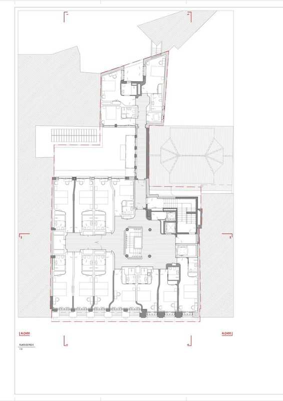
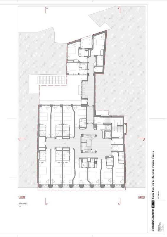
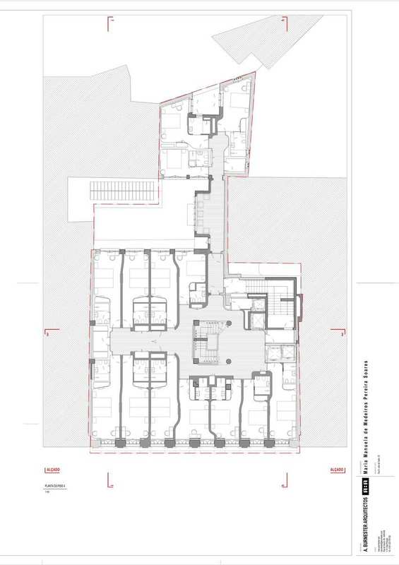
Span longitudinal: 30.5m · Profundidad habitación: 7.7–7.8m · Gran salón P6: ~550 m²
Alzado Principal + Corte A · A. Burmester Arquitectos · Esc. 1:100 · Propuesta R4 · 18.07.2021
Límite de intervenção · Cotas altimétricas · Pendentes · Designação de compartimento · Áreas útil e bruta · Escadas de evacuação entre pisos.
Fachada de granito a manter · ETICS de revestimento · Cobertura em zinco · Caixilharia de madeira escuro · Guarda de aço inox · Vidro duplo · Porta e vitral a restaurar.
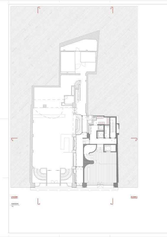
Alzado Principal · Corte A · A. Burmester Arquitectos · 1:100
Granito existente a mantener · Caixilharia de madeira a restaurar · Vitral a restaurar · Cobertura en zinc
Cave + RC + Mezzanino + Pisos 1–6 + Cobertura. El alzado revela la lógica estructural completa del conjunto.
Un lenguaje de modernidad, espectáculo y vida urbana · décadas 1920–40
La clave es cronológica y urbana. La gran reordenación del centro —con el nuevo eje de Aliados y la ampliación del centro cívico— coincidió con las décadas en las que el Déco y el primer modernismo daban forma a la idea de ciudad moderna.
El lenguaje aparece con fuerza en cuatro programas concretos:
Coliseu, Batalha, Rivoli
O Comércio do Porto, CGD Aliados
Café Imperial — Praça da Liberdade
Casa de Serralves
En Oporto el Déco rara vez es "puro": suele mezclarse con Beaux-Arts tardío, modernismo y streamline.
Tres edificios explican mejor que nadie la alianza entre fachada, programa y visibilidad urbana.
Hito vertical de 1941. Torre, rótulo y presencia nocturna como emblema del espectáculo. El edificio actúa como un cartel tridimensional.
El caso más claramente streamline: esquina curva, vidrio y relieve escultórico. El cine se vuelve imagen urbana.
Más sobrio pero decisivo. Moderniza la fachada teatral con control y simetría depurada. El Déco como rigor, no como ornamento.
En Oporto la palabra escrita se vuelve arquitectura. Y en ese lenguaje nació el Café Imperial.
"No buscamos hoteles bonitos. / Buscamos hoteles con identidad, vida pública / y una razón cultural para existir."
Núcleo de cadenas · Independientes · Principios duros · Red flags · Implicaciones para concepto
The Hoxton · Ace Hotel · The Standard · Soho House
Casa Bonay · Hotel Saint Vincent · Ett Hem · Le Pigalle
Lugar · ground floor · pertenencia · F&B · cultura · calidez
estética vacía · hotel genérico · F&B débil · localismo superficial
Mapa de referencias y filtro estratégico para un concepto hotelero con identidad.
The Hoxton · Ace Hotel · The Standard · Soho House
Casa Bonay · Hotel Saint Vincent · Ett Hem · Le Pigalle
Lugar · ground floor · pertenencia · F&B · cultura · calidez
estética vacía · hotel genérico · F&B débil · localismo superficial
Las cuatro referencias que mejor definen este territorio: hotel de barrio, hub cultural, hotspot social y club creativo.
| Referencia | Territorio | Qué vende de verdad | Clave operativa | Aprendizaje |
|---|---|---|---|---|
| The Hoxton | Hotel de barrio, abierto y social | Vecindad, calidez y uso cotidiano del ground floor | Lobbies vivos, all-day dining y relación fuerte con la localidad | El hotel puede sentirse como una casa abierta a la ciudad |
| Ace Hotel | Hub cultural creativo | Escena, cultura y pertenencia informal | Arte, programación, colaboraciones y lobby como plataforma | La cultura no es un adorno: es parte del producto |
| The Standard | Hotspot social con diseño y nightlife | Deseo social y sensación de estar donde pasan cosas | Bares, rooftop, F&B y energía pública como núcleo | La vida pública puede pesar tanto como la habitación |
| Soho House | Club creativo basado en pertenencia | Acceso, comunidad y sensación de casa global | Membresía, club spaces, bedrooms, wellness y eventos | La pertenencia bien definida crea magnetismo y recurrencia |
Lectura estratégica: cuatro formas distintas de resolver el mismo territorio lifestyle.
No son cadenas, pero respiran el mismo aura: diseño con alma, vida pública, relación real con el lugar y mundo propio.
| Referencia | Arquetipo | Por qué entra aquí | Qué enseña |
|---|---|---|---|
| Casa Bonay | Hotel de barrio, cultural y abierto | Independiente, barcelonés, mezcla alojamiento + oferta gastronómica + capa cultural | Cómo hacer que locales y viajeros usen el mismo lugar sin fricción |
| Hotel Saint Vincent | Hotel con escena y capa artística | Espíritu propio, anclaje en New Orleans y residencia artística Room 120 | Cómo sumar aura, programación y F&B sin parecer impostado |
| Ett Hem | Casa sofisticada / refugio residencial | Modelo de intimidad, calidez y lujo no-hotelero | Cómo hacer que "hogar" se sienta elevado y no doméstico sin más |
| Le Pigalle | Hôtel de quartier con identidad fuerte | Relación explícita con el barrio, sus colaboradores y su energía nocturna | Cómo convertir la localidad en carácter, no en decoración |
Hotel Chelsea · The Greenwich Hotel · The Mercer · Nine Orchard · Château Voltaire · El Fenn · Hotel Il Pellicano · Casa Cook · Dimorestudio
No es solo una referencia visual. Es una referencia de lógica.
Casa Bonay es la referencia que mejor concentra lo que este proyecto quiere ser: un hotel que pertenece a su ciudad, que actúa como casa social, cuyos espacios públicos pesan tanto como las habitaciones, y que respira a través de comida, bebida, energía local y atmósfera.

Casa Bonay no se copia. Se interpreta. Representa una forma de entender la hospitalidad donde el concepto no depende del interiorismo, sino de la vida que genera: el bar, el café, las colaboraciones, el ritmo social.
Si quitamos los muebles y el concepto sigue en pie, entonces el concepto es fuerte.
Las demás referencias independientes enriquecen el territorio. Casa Bonay lo define.
Lo útil no es copiarlos: es entender qué tipo de lugar es cada uno y qué tensión resuelve.
Mapa interpretativo: no mide categoría, mide el tipo de experiencia social y cultural que propone el lugar.
No buscamos un hotel bonito, ni un hotel de lujo convencional, ni un hotel temático sobre Portugal.
Buscamos un hotel con alma. Un hotel inseparable de Porto. Un lugar con identidad, vida pública, magnetismo y criterio.
Queremos un proyecto abierto a la ciudad, con espacios comunes fuertes, identidad cultural real y una hospitalidad más cercana a una casa viva que a un hotel genérico.
El objetivo es construir un hotel que nazca de la historia del Café Imperial, de su arquitectura y de su relación con Porto.
THE HOTEL debe concebirse como un café-hotel cultural.
Debe sentirse como una casa pública contemporánea: cálida, viva, culta y con carácter.
No debe sentirse como un hotel corporativo, un boutique hotel internacional sin raíz o un espacio donde lo local se resuelve con clichés decorativos.
La ambición de THE HOTEL es convertir la hospitalidad en una forma de acceso a Portugal real.
La experiencia debe construirse desde la materia, la atmósfera, el objeto, la mesa, la luz y el ritmo del lugar.
El hotel debe expresar una versión contemporánea, sofisticada y viva de Portugal.
Cinco criterios no negociables.
La propuesta debe conseguir que el hotel parezca imposible de trasladar a otra ciudad sin perder sentido.
La identidad del proyecto no puede vivir solo en las habitaciones. Tiene que vivir sobre todo en el acceso, el café, el bar y los espacios compartidos.
THE HOTEL debe ser un lugar al que se entre también sin dormir allí. Debe tener vocación de punto de encuentro.
La propuesta debe trabajar la luz, la materialidad, el ritmo y la relación entre lo íntimo y lo público para crear una experiencia reconocible.
La identidad portuguesa del proyecto no debe resolverse con símbolos, sino con una interpretación auténtica, contemporánea y bien medida de Portugal.
La propuesta debe dialogar con la historia del Café Imperial sin convertirla en un decorado nostálgico. No buscamos una reconstrucción literal, sino una reinterpretación contemporánea con sensibilidad histórica.
El café/bar no puede tratarse como un servicio secundario. Debe ser una pieza estructural del concepto y uno de los principales motores de identidad y atracción del hotel.
Queremos espacios donde uno quiera quedarse: conversar, leer, reunirse o simplemente estar. No espacios de paso ni de espera.
Las habitaciones deben transmitir calma, intimidad y carácter. No deben parecer estándar ni intercambiables.
No buscamos un proyecto vistoso, sino un proyecto con textura, capas, honestidad y durabilidad.
El hotel debe alejarse por completo de la lógica del souvenir. Todo lo que se pueda llevar debe sentirse auténtico, deseable y coherente con el concepto.
La identidad debe construirse también desde la capa gráfica, con carácter y coherencia, no solo desde la arquitectura y el interiorismo.
Éste es un criterio clave. El proyecto debe ser creíble y atractivo también para alguien que vive en Porto.
La colaboración con talento, oficios y cultura material portuguesa no debe entenderse solo como una decisión estética o conceptual. Debe entenderse también como una herramienta de comunicación.
Trabajar desde Portugal permite que la historia del hotel se construya desde la verdad, no desde el decorado. Da profundidad al proyecto. Da credibilidad. Da contenido. Y convierte cada elemento del hotel en una oportunidad real de relato.
No buscamos un hotel al que después haya que inventarle una narrativa. Buscamos un hotel cuya propia construcción genere historia desde el inicio.
Cuando un proyecto nace en diálogo con su contexto, con su cultura material y con una red real de conocimiento local, la comunicación deja de ser una capa superficial y se convierte en una consecuencia natural del concepto.
Esto aporta valor en tres niveles.
Permite contar el hotel desde su origen, sus procesos, su identidad y su vínculo con Porto de una forma más rica, más auténtica y más diferenciadora.
Cada decisión vinculada al proyecto puede traducirse en contenido con sentido: materiales, procesos, objetos, espacios, detalles y vida del lugar.
Vincular el proyecto a una red creativa y productiva portuguesa refuerza su capacidad de conectar con la ciudad, con medios, con públicos afines y con una conversación cultural más amplia.
La ambición no es solo que el hotel esté en Porto. La ambición es que solo pueda contarse desde Porto.
THE HOTEL debería sentirse: cálido, culto, material, ligeramente doméstico, con densidad histórica, elegancia sin ostentación y una dimensión social real.
No debería sentirse: frío, minimalista, lujoso de forma genérica, folclórico, turístico, sobrediseñado o internacionalmente intercambiable.
La atmósfera ideal está más cerca de una casa pública con carácter que de un hotel boutique sin raíces.
La luz, en particular, importa. Atmósfera nocturna, cálida y acogedora. Lámparas puntuales, sombras suaves, destellos cálidos sobre fondos profundos — no iluminación técnica ni neutra.
Moodboard · tono material, calidez nocturna, ritmo social.








No buscamos una propuesta efectista. Buscamos una propuesta con inteligencia, sensibilidad y posición.
Mucho moodboard y poca lógica operativa. Piezas bonitas sin concepto que las sostenga.
Portugal convertido en estética superficial · referencias "locales" turísticas o folclóricas · clichés visuales.
Lobby, bar o restaurante que no tienen razón propia para atraer a la gente.
Una mala propuesta de comida y bebida rompe todo el concepto.
Programación hecha para llenar agenda, no para construir cultura.
Sin criterio de audiencia no aparece ninguna comunidad.
Recepción, circulación y servicio demasiado corporativos. Hotel cerrado sobre sí mismo.
Pulido, caro y correcto; pero sin mundo propio. Lujo genérico, trasladable a cualquier ciudad.
No queda claro si es abierto, privado, de escena o de refugio.
Art Déco usado como disfraz. Sofás, lámparas y tonos oscuros sin la estructura que los sostiene.
Las propuestas deberán responder con claridad a estas preguntas:
Esperamos una propuesta capaz de: